The Arbors at Stoneham
Project Type:
Design/Build
Project Summary:
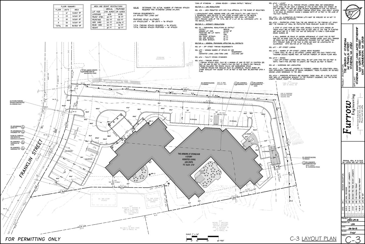
New, 4-Story, 80,920 s.f. Senior Living Facility
Project Manager/Engineer:
Jay Roscoe
Lead Designer:
Jon Solecki
Construction Supervisor:
Stuart McGregor, L.C.S.
Project Description:
Sage Engineering and Contracting, Inc. has designed, permitted, and is now constructing a new, 80,920 S.F., 4-story, Senior Living Facility. Site improvements will include parking areas, a new driveway, storm water management system, and typical underground utilities.
Client:
Stoneham Assisted Living Limited Partnership
Location:
Stoneham, MA
Design and Permitting:
Feb 2013 - May 2013
Construction Date:
June 2013 - Present
